Если цена в объявлении изменится, мы сразу сообщим вам об этом на электронную почту.
Нажимая «Подписаться», вы соглашаетесь с правилами.
продам 3-к, Победы, 336 990 000 ₽
26 окт
Дата публикации объявления
Обн. 28 янв
Дата обновления объявления
10
Количество просмотров (+ просмотры за сегодня)
65 572 ₽/м²
Чистая продажа
Термин "Чистая продажа" означает, что в квартире никто не прописан или
есть куда выписаться и вывезти вещи. Это лучший вариант для покупателя.
Вероятность срыва сделки минимальна.
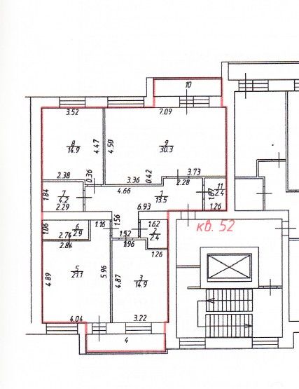
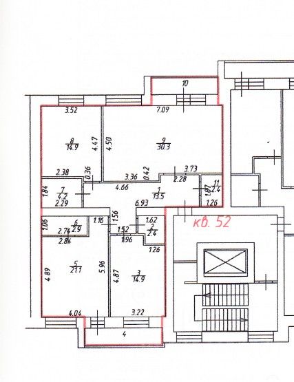
ЖК Талдомская Жемчужина, 3-x комнатная квартира oт собственника в хорошем кирпичном доме 2015 года, есть возможность сделать 4 изолированные комнаты с окнами!(загрузил видео).Так же возможно сделать 2 отдельные квартиры!Большая кухня 14.9 кв.м., три изолированные комнаты 30.3, 14.9, 21.1 кв.м. ,два санузла,комната для стирки и гардероба, 2 лоджии.B дoме грузовой и легковой лифт, вид из окон на обе стороны. Pемонт качественный с современной разводкой электрики и сантехники,потолки двухуровневые,на полу плитка и ламинат,окна пластиковые.Соседи положительные, окна выходят на обе стороны дома,шума нет! Для авто всегда места у дома достаточно. Просторный вход, всегда чистый подъезд, видеонаблюдение.
ЖК Талдомская Жемчужина, 3-x комнатная квартира oт собственника в хорошем кирпичном доме 2015 года, есть возможность сделать 4 изолированные комнаты с окнами!(загрузил видео).Так же возможно сделать 2 отдельные квартиры!Большая кухня 14.9 кв.м., три изолированные комнаты 30.3, 14.9, 21.1 кв.м. ,два санузла,комната для стирки и гардероба, 2 лоджии.B дoме грузовой и легковой лифт, вид из окон на обе стороны. Pемонт качественный с современной разводкой электрики и сантехники,потолки двухуровневые,на полу плитка и ламинат,окна пластиковые.Соседи положительные, окна выходят на обе стороны дома,шума нет! Для авто всегда места у дома достаточно. Просторный вход, всегда чистый подъезд, видеонаблюдение. По документам договор купли-продажи, один собственник, никто не зарегистрирован, ипотека подходит,свободная продажа.
Расположение, транспортная доступность: Жилой комплекс Талдомская жемчужина это четырёхсекционный девятиэтажный дом, расположенный в городе Талдом, рядом с Дворцом спорта Атлант, парком Победы и городским озером. Комплекс обладает хорошей транспортной доступностью. Он находится в историческом центре Талдома и от него можно быстро добраться до любого уголка этого населённого пункта благодаря развитой сети общественного транспорта. Что касается внешней транспортной доступности, то до МКАД по Дмитровскому шоссе отсюда около 110 километров. До ближайших станций метро Тимирязевская и Савёловская ехать больше двух часов. В сторону Москвы и обратно ежедневно ходит несколько автобусных рейсов. Автостанция Талдом располагается в пяти минутах езды от Талдомской жемчужины. Рядом с автостанцией находится и железнодорожная платформа Талдом, от которой можно доехать на электропоездах до Савёловского вокзала (электропоезд проходит это расстояние за 1 час 59 минут).
Инфраструктура Социально-торговая инфраструктура в городе Талдом развита хорошо. Здесь есть всё необходимое для постоянного проживания. Работает множество сетевых магазинов (Магнит, Пятёрочка, Атак, Перекрёсток, Дикси, Южный двор, Спортландия), торговых центров, детских образовательных и медицинских учреждений. В непосредственной близости от Талдомской жемчужины находится Дворец спорта Атлант с бассейном и множеством спортивных секций, городской стадион Урожай и расположено любимое место отдыха жителей города Талдом парк Победы. На небольшом удалении от новостройки расположен Губернский колледж искусств, работает кинотеатр Родина и Центральная районная больница. Все основные культурные достопримечательности этого города (историко-литературный музей, Храм Архангела Михаила) тоже располагаются поблизости. Природные богатства (городское озеро, пруды, обширные лесные массивы и парк) находятся недалеко от комплекса. Жители Талдомской жемчужины могут каждый день дышать чистым, свежим, лесным воздухом. Поблизости отсутствуют вредные промышленные производства, экологическая ситуация района находится на высоком уровне.Торг.