Если цена в объявлении изменится, мы сразу сообщим вам об этом на электронную почту.
Нажимая «Подписаться», вы соглашаетесь с правилами.
продам дом, Кустарная, 2511 700 000 ₽
12 июля 2024
Дата публикации объявления
Обн. 18 июня 2025
Дата обновления объявления
31
Количество просмотров (+ просмотры за сегодня)
61 579 ₽/м²
Чистая продажа
Термин "Чистая продажа" означает, что в квартире никто не прописан или
есть куда выписаться и вывезти вещи. Это лучший вариант для покупателя.
Вероятность срыва сделки минимальна.
Этажей2
Площадь участка9,4 соток
Общая площадь190 м2
Материал домадерево
ЭлектричествоЕсть
Газоснабжениецентральное
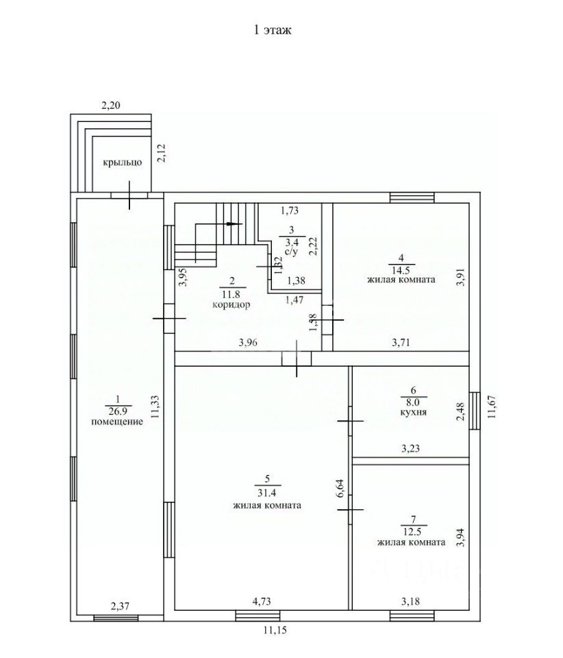
Арт. 69279587 Продается жилой новый (2024г) деревянный двух-этажный дом в центре города Талдома (190 кв.м.) с большой террасой (27 м2), на участке 9.4 сотки (свежий газон), по периметру новый забор металлопрофиль, по фасаду ленточный фундамент, металлический штакетник, откатные ворота (4-х метровые), калитка отдельно, при входе устроена брусчатка до входной зоны в дом. Дом построен на ленточном фундаменте, с вентиляционными отверстиями. Входная зона крыльца в дом - металлический каркас и деревянные ступени. Дверь металлическая, утепленная, 2 замка, в дорогой комплектации, дверные ручки с нажимным механизмом. Вход в дом через просторную отапливаемую террасу (27 м2), коридор с окном на террасу (12 м2). Дом 1 этаж бревенчатый, 2-й этаж из бруса.
Арт. 69279587 Продается жилой новый (2024г) деревянный двух-этажный дом в центре города Талдома (190 кв.м.) с большой террасой (27 м2), на участке 9.4 сотки (свежий газон), по периметру новый забор металлопрофиль, по фасаду ленточный фундамент, металлический штакетник, откатные ворота (4-х метровые), калитка отдельно, при входе устроена брусчатка до входной зоны в дом. Дом построен на ленточном фундаменте, с вентиляционными отверстиями. Входная зона крыльца в дом - металлический каркас и деревянные ступени. Дверь металлическая, утепленная, 2 замка, в дорогой комплектации, дверные ручки с нажимным механизмом. Вход в дом через просторную отапливаемую террасу (27 м2), коридор с окном на террасу (12 м2). Дом 1 этаж бревенчатый, 2-й этаж из бруса. В доме 6 комнат, просторные, светлые, на 1-м этаже гостиная проходная (32 м2) и 2 изолированные комнаты (15 м2 и 13 м2), кухня (9 м2), на 2-м этаже (мансарда) большой холл (20 м2), одна изолированная комната (22 м2) и просторная комната (45 м2) , которую возможно разбить как ВАМ угодно, или использовать как есть (библиотека, музыкальный салон, игровая или под учебное пространство для групповых занятий либо мастерской), библиотека. Центральное водоснабжение, центральное газоснабжение, септик, бойлер. Крыша выполнена из металлочерепицы, установлены водостоки, снегозадержатели. Покрытие пола 1 этаж - ламинат, 2-й этаж - доска пола, стены и потолок имитация бруса, покрыты бесцветной эмалью, в санузле теплый пол, ванная пластиковая раковина установлены на высоте с учетом установки стиральной машины под ней. Крепкая удобная лестница на второй этаж, под ней кладовка. Кухня (12 м2) оборудована мебелью, вытяжка, газовый счетчик, отопление от газового котла. Электрический счетчик двухтарифный (установлен на территории). Строили для себя.
ВОЗМОЖНА ипотека. Через наше агентство возможна субсидированная ипотека по ставке от 14,75 % !!! Не упустите возможность!
Дом подойдет как большой дружной семьи с детьми, любящими уединенное проживание на своей земле в оживленном месте провинциального города, так и для семьи, у кого свой бизнес. Участок свободный, ровный, правильной формы, возможно разбить зону барбекю, установить беседку, бассейн, гостевой домик, гараж, все, что Вам удобно и необходимо для комфортного проживания, отдыха или работы. Соседи спокойные. Дом расположен в 300 м до автовокзала и ж/д станции, в 30 метрах от дома автобусная остановка, в шаговой доступности развитая инфраструктура (МФЦ, Администрация, Дворец спорта ''Атлант'', Дворец творчества, городской парк ''Парк Победы'', школы, детские сады, сетевые магазины, аптеки, рынки) недалеко Церковь Архангела Михаила, в шаговой доступности оборудованная зона отдыха у Городского озера с пляжем. Тихая и удобная городская жизнь для комфортного проживания семьи с детьми и родителями. До Дмитрова 47 км, до МКАД 97 км. Рядом заповедная территория ''Журавлиная родина'', грибные и ягодные леса, реки, озера.
Спешите купить дом в Талдоме в лучшем уголке чистого Подмосковья! Звоните! Купите дом в центре Талдома по привлекательной цене!!!!! Звоните, записывайтесь на показ!